BAUPLANUNG

Projekt:
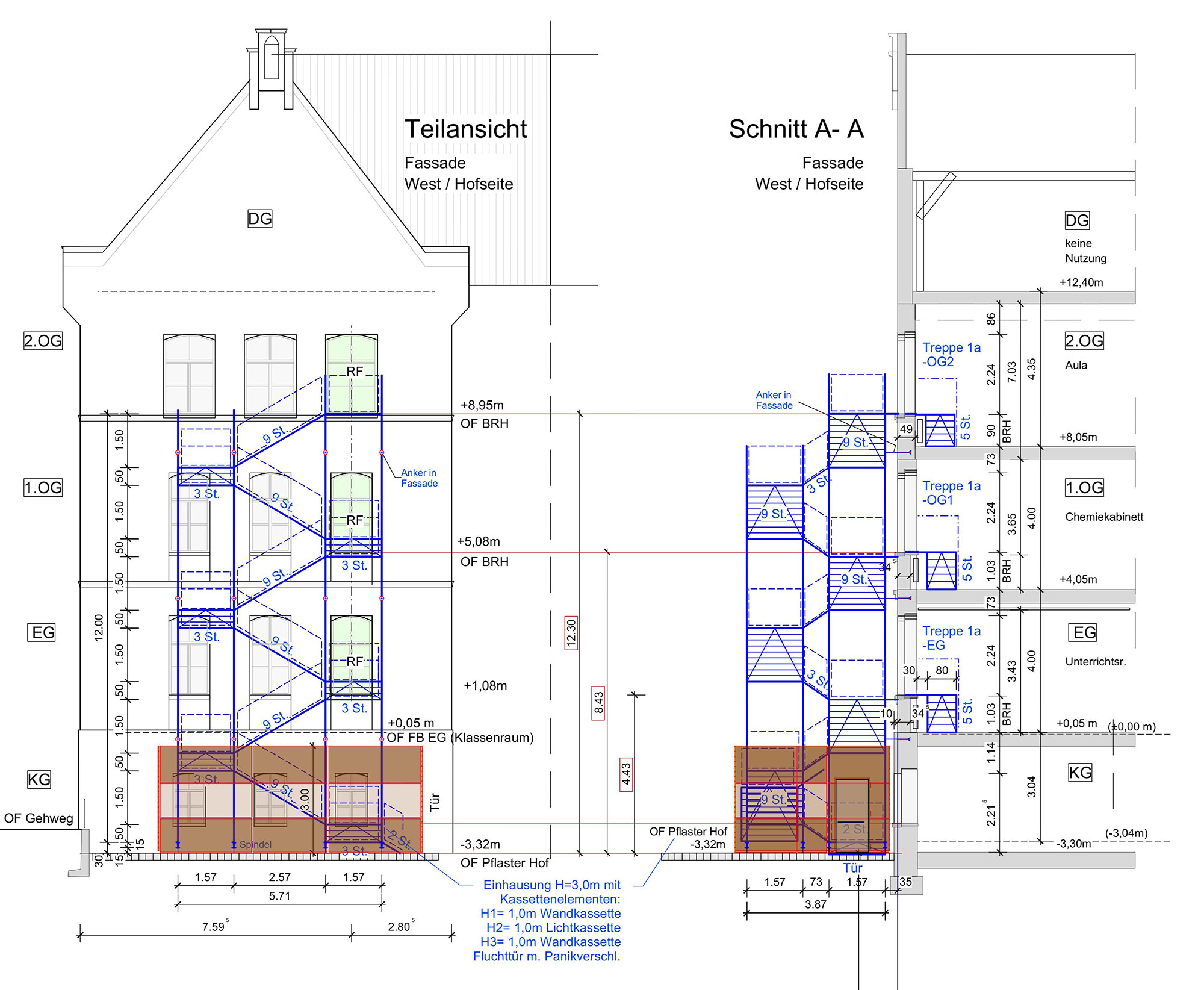
Anbau Rettungstreppe Regelschule Auma zur Umsetzung Brandschutzkonzept, Jahr 2025
Bauherr: Landkreis Greiz
Herstellung eines zweiten baulichen Rettungswegs als eine Übergangslösung für die Dauer
von 6 Jahren durch:
- Anbau von 2 Fluchttreppen aus Gerüstkonstruktion außen für
- Einbau Innentreppen Stahlbau in Klassenräumen, Etagen EG, 1.OG und 2.OG zur Überwindung
der Höhe der Fensterbrüstung. - Einbau Bypasstüren in Klassenräumen in den Etagen EG, 1.OG und 2.OG
Baukosten: 295 T€.
Leistungen zur Objektplanung nach HOAI:
- Entwurfsplanung
- Bauantrag
- öffentliche Ausschreibung
- Bauüberwachung
