BAUPLANUNG

Projekt:
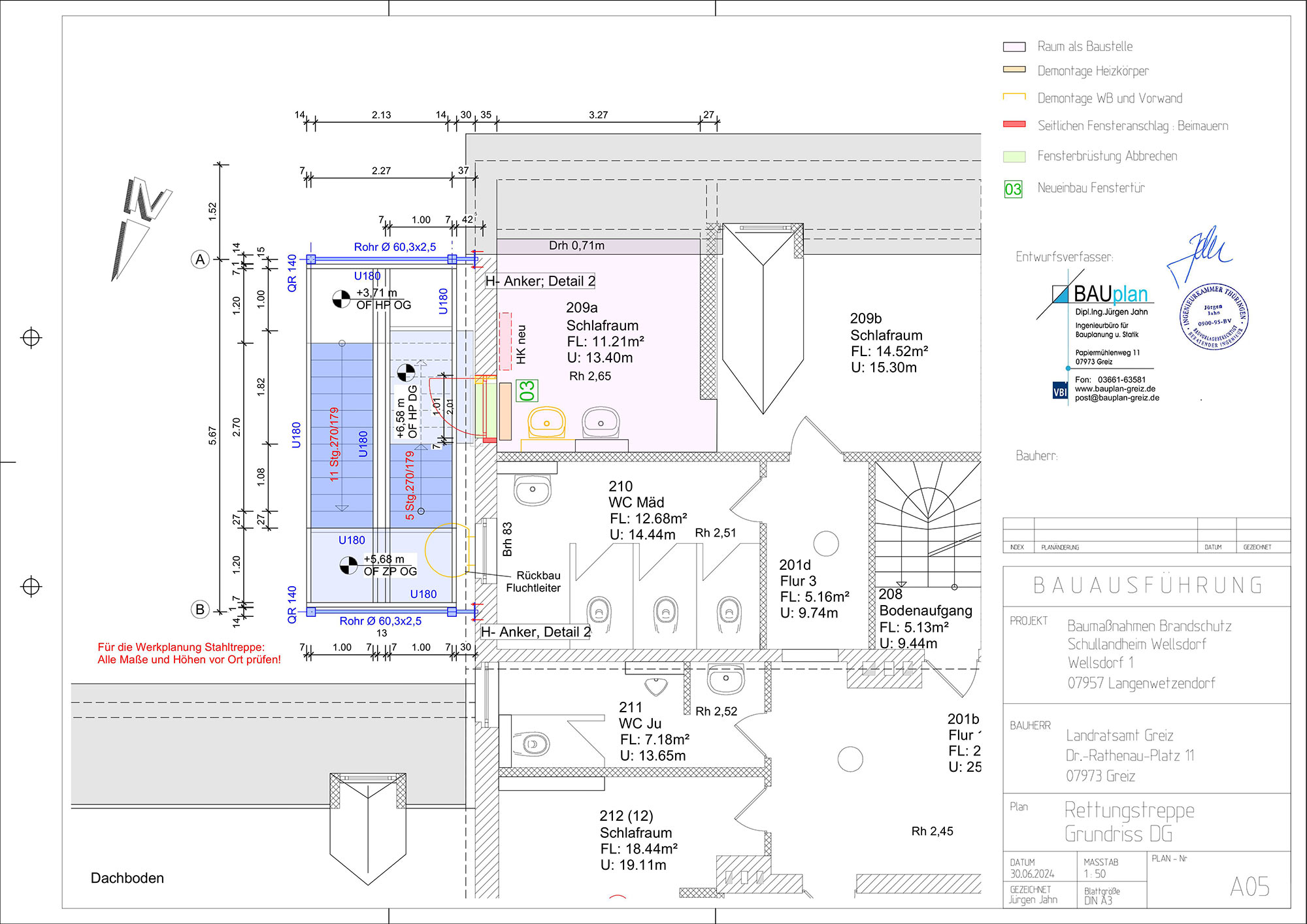
Anbau Rettungstreppe Schullandheim Wellsdorf Auma zur Umsetzung Brandschutzkonzept, Jahr 2025
Bauherr: Landkreis Greiz
Herstellung eines zweiten baulichen Rettungswegs durch:
- Anbau einer Fluchttreppe aus Stahlkonstrukion außen
- Bauliche Änderung Fensteröffnungen zu Fenstertüren
- Bauliche Änderungen Innenausbau der Räume dahinter.
Baukosten: 140 T€.
Leistungen zur Objektplanung und Tragwerksplanung nach HOAI:
- Entwurfsplanung
- Bauantrag
- öffentliche Ausschreibung
- Bauüberwachung
